|
Como - Via Santa Marta - Villa
singola di ampia metratura e finiture di pregio in posizione
collinare, panoramica con vista
lago, in zona tranquilla, vicina al centro di Como. Con
ampio porticato-veranda, finestrature vista lago e ampio giardino di
proprietà.
|
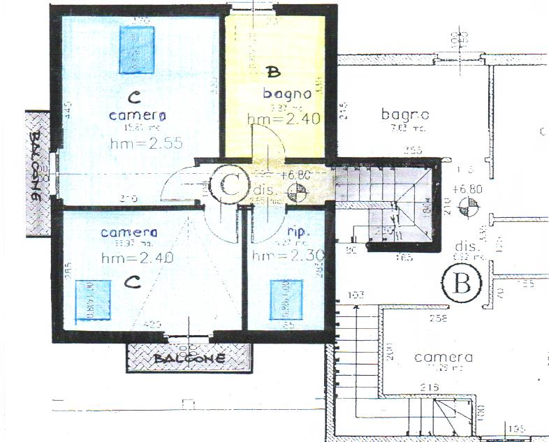
Pianta
1° piano
Pianta
2° piano
|
Como Trecallo -
Abitazione trifamiliare Complesso
trifamiliare in località Trecallo con accesso da via Canturina: Appartamento
unico a piano terra 2 appartamenti con
ingresso separato e sviluppo su 2 piani (zona giorno - zona notte) +
sottotetto per un totale di Mq 120 ognuno. Box
di proprietà a piano interrato con accesso da rampa. Consegna
ottobre 2003.
|

|
Capiago
Intimiano - Via San Carlo - Località Olmeda
Nel verde in complesso trifamiliare a schiera,
completamente immersa nel verde in zona tranquilla,
di villetta di testa con
taverna e box doppio, piano terra e piano mansardato con
giardino di proprietà.
|

|
Capiago
Intimiano -
Via San Carlo
Nel verde complesso quadri-familare, di ottime
rifiniture, appartamento al primo piano con mansarda,
terrazzo e box doppio nel seminterrato.
|
|
Maslianico
- Via XX Settembre
Acquisto terreno e costruzione di
complesso di n.6 villette a schiera.
|
|
Torno -
Strada per Monte Piatto
Acquisto di mq 10000 di terreno.
Sbancamento su roccia e formazione di muri di
contenimento sia per la formazione di strade che per la
costruzione di n.15 villette.
Risultato: terrazza sul lago
|
|
Como -
Rebbio, Via Delle Campagne
Acquisto terreno e
costruzione di villa bifamiliare.
|